


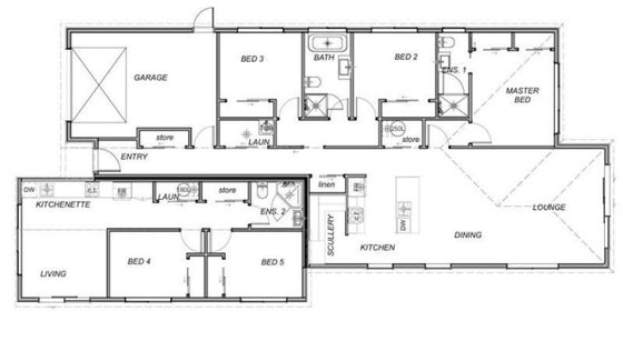
+3Introducing an exciting opportunity in Park Ridge, Queenstown - a brand-new, off-the-plan three plus two home and income property, perfectly designed for modern living and investment potential.
This thoughtfully planned property features a three-bedroom main residence, complemented by a two-bedroom self-contained unit, offering flexibility for extended family, guests, or a rental income stream.
The open-plan kitchen, living, and dining areas create a bright, airy heart of the home, ideal for family life or entertaining. Contemporary finishes and clever design ensure low-maintenance, modern living throughout.
Situated within the desirable Park Ridge development, residents enjoy a growing community, beautiful surroundings, and easy access to Queenstown's amenities, schools, and recreational attractions - making it highly appealing to both tenants and owner-occupiers.
Whether you're looking for your next family home or a strong investment with dual-income potential, this brand-new home and income package offers flexibility, style, and smart financial advantage.
311 Hawthorne Drive, Frankton, Queenstown



Our agents are experts on all things in the property market, if you haven't found what you're looking for, please enquire with the listing agent now to have all of your property questions answered.
Contact us and have your questions answered.
Use the download button below to view all available documents for this property.